• Home
  • Chi siamo
  • Immobili
    • Vendite
    • Affitti
    • Attività
    • Immobili commerciali
    • Aste
    • Cantieri
  • Servizi
    • Per chi vende
    • Per chi compra
    • Per chi va in vacanza
    • Home staging
    • Casa in TV
Trova Casa Brianza
  • Home
  • Vendite
  • Affitti
  • Attività
  • Immobili commerciali
  • Aste
  • Cantieri
  • Chi siamo
  • Servizi
    • Per chi vende
    • Per chi compra
    • Per chi va in vacanza
    • Home staging
    • Casa in TV
  • Mutui
    • Rent to buy
  • Collabora con noi
    • Fai carriera con noi
    • Per le agenzie
  • Contatti
    • Italiano
    • English

AMPIO MAGAZZINO/LABORATORIO IN ZONA CENTRALE

  • Home
  • Vendite
  • Codice: V011117

Descrizione

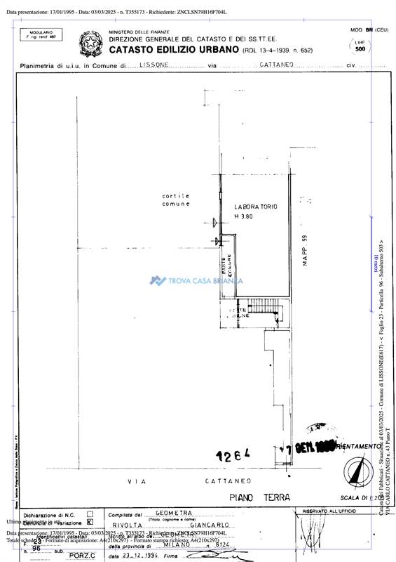
Sei alla ricerca di un MAGAZZINO a LISSONE? Non lasciarti sfuggire questa occasione di 90 MQ OPEN SPACE, con AMPIA AREA DI MANOVRA, in zona centrale.
Il magazzino si trova al piano terra, ha un'ampio cortile a disposizione per le manovre, e un comodo accesso carraio. L'altezza interna è di 3,8 metri e dispone di un ampio e comodo portone di ingresso.
Prenota subito la tua visita al nostro OPEN HOUSE.


Caratteristiche principali

Stato Immobile
Buono
Grado
Medio
Posizione
Centro
Acqua Calda
Autonoma
Infissi
Alluminio
Serramenti
Buono
Pavimento
Gres Porcellanato
Destinazione
Artigianale

Mappa

via carlo cattaneo 43, Lissone (MB)

Richiedi informazioni

Invia

Condividi

  • Tweet

Magazzino

  • Lissone
  • Mq: 88
  • Locali: 1
  • Posti auto: 1
  • Classe: G
105.000 €

Contattaci

039 9466529
QRCODE
Qr Code
Ti consigliamo anche
Negozio In Vendita a Lissone
272.000 €
Negozio In Vendita a Lissone
1 Camere 1 Bagni 90 m2

Le nostre proposte

  • Vendite
  • Affitti
  • Attività
  • Immobili commerciali
  • Aste
  • Cantieri

Contatti

  • Indirizzo : Via Garibaldi, 2
    20847 - Albiate (MB)
  • Telefono : 039 9466529
  • Telefono : 347 4666741
  • Fax : 0362 609959
  • Email : info@trovacasabrianza.it

Ultime Acquisizioni

  • Magazzino - Lissone - 105.000 €
  • Villa - Correzzana - 699.000 €
  • 3 locali - Giussano - 349.000 €

Trova Casa Brianza - P. IVA 07681190968 - Privacy Policy - Cookie Policy - Revoca consensi - Powered by Miogest.com