• Home
  • Chi siamo
  • Immobili
    • Vendite
    • Affitti
    • Attività
    • Immobili commerciali
    • Aste
    • Cantieri
  • Servizi
    • Per chi vende
    • Per chi compra
    • Per chi va in vacanza
    • Home staging
    • Casa in TV
Trova Casa Brianza
  • Home
  • Vendite
  • Affitti
  • Attività
  • Immobili commerciali
  • Aste
  • Cantieri
  • Chi siamo
  • Servizi
    • Per chi vende
    • Per chi compra
    • Per chi va in vacanza
    • Home staging
    • Casa in TV
  • Mutui
    • Rent to buy
  • Collabora con noi
    • Fai carriera con noi
    • Per le agenzie
  • Contatti
    • Italiano
    • English

CERCHI UNA VILLA IMMERSA NEL VERDE VISTA MONTAGNE?

  • Home
  • Vendite
  • Codice: V011196

Descrizione

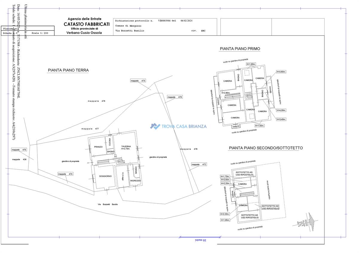
MERGOZZO (VB) – fraz. NIBBIO
Elegante dimora indipendente con giardino privato e vista sulle montagne

Nel cuore della quiete piemontese, a soli cinque minuti dalle acque cristalline del Lago di Mergozzo, proponiamo in vendita una prestigiosa proprietà INDIPENDENTE di circa 370 mq, immersa nella privacy di un giardino esclusivo di 500 mq, con area parcheggio privata e box auto (disponibile a parte).

Una residenza che unisce charme, ampiezza e grande potenzialità, ideale per chi desidera vivere circondato dal verde senza rinunciare alla comodità dei servizi e alle bellezze naturali del territorio.

La PARTE RISTRUTTURATA – Eleganza e comfort contemporaneo

Completamente rinnovata nel 2003, la prima porzione si sviluppa su due livelli armoniosamente collegati da una raffinata scala in legno.

Al piano terra, il doppio ingresso conduce in una luminosa zona living dove soggiorno e sala da pranzo dialogano con una cucina a vista impreziosita da camino a legna: un ambiente caldo e conviviale, perfetto per accogliere famiglia e ospiti. Completa il livello un bagno finestrato con doccia.

A PIANO SUPERIORE troviamo la zona notte, composta da:

Tre ampie camere matrimoniali

Una camera singola

Bagno finestrato

Balcone con affaccio aperto sul verde

La luce naturale accompagna ogni ambiente, mentre la vista sulle montagne crea un suggestivo scenario in ogni stagione.

Le finiture esprimono qualità e cura: serramenti in legno con doppio vetro, caldaia a condensazione, pavimenti in gres e parquet nelle camere, per un perfetto equilibrio tra funzionalità e raffinatezza.

Il giardino privato, facilmente accessibile dalla zona cucina, rappresenta un autentico valore aggiunto: uno spazio riservato dove rilassarsi, organizzare cene estive o realizzare una zona wellness o piscina.

LA SECONDA PORZIONE – Spazio da reinventare

Collegata internamente, la seconda ala della proprietà (circa 240 mq) si sviluppa su tre livelli collegati da scala in marmo.

Qui la casa si presta a molteplici interpretazioni: ampliamento della residenza principale, creazione di una seconda unità indipendente o sviluppo di una struttura ricettiva di charme.

Ogni piano (circa 80 mq) offre ambienti generosi, camini originali e spazi luminosi, oltre a balconi per complessivi 16 mq e un sottotetto agibile di circa 30 mq.

Una tela architettonica pronta per essere valorizzata secondo il proprio gusto e la propria visione.

Una location esclusiva tra lago e montagna

La proprietà gode di una posizione strategica e riservata:

5 minuti dal Lago di Mergozzo

30 minuti dal Lago Maggiore

Vicinanza alle principali località sciistiche

Contesto naturale di assoluta tranquillità

Una dimora dalle molte anime

Perfetta come:

- Residenza privata di prestigio

- Dimora bifamiliare

- Villa per vacanze di alto livello

- Boutique B&B o struttura ricettiva esclusiva

- LIBERA E DISPONIBILE DA SUBITO. Possibilità arredi.

Una proprietà rara per metratura, indipendenza e potenzialità, dove vivere il fascino autentico del territorio in un contesto riservato e di grande respiro.


Caratteristiche principali

Stato Immobile
Buono
Grado
Medio
Posizione
Montagna
Panorama
Vista Monti
Orientamento
Nord Ovest Sud Est
Lati Liberi
4
Giardino
Privato
Arredi
Arredato
Tipo Soggiorno
Soggiorno
Tipo Cucina
A Vista
Riscaldamento
Autonomo
Tipo Riscaldam.
Caldaia a Condensazione
Tipo Impianto
Radiatori
Fonte Energetica
Metano
Acqua Calda
Autonoma
Infissi
Legno Doppio Vetro
Serramenti
Buono
Persiana
Persiana Legno
Pavim. Giorno
Gres Porcellanato
Pavim. Notte
Gres Porcellanato
Pavim. Cucina
Gres Porcellanato
Pavim. Bagno
Ceramica
Accesso Disabili
Nessuna Barriera
Accesso interno disabili
Ingressi adattati
Isolamento
Presente
Isolamento termico
Isolamento tetto/sottotetto
Isolamento acustico
Isolamento pareti
Destinato a residenti
Si
Impianto d’irrigazione
No
VMC
No
Accessori: Armadio a Muro, Camino, Doppi Vetri, Passaggio Pedonale, Porta Blindata, Ripostiglio, Tavolini Esterni

Mappa

Via Bozzetti 13, Mergozzo (VB)

Richiedi informazioni

Invia

Condividi

  • Tweet

Villa

  • Mergozzo (Nibbio)
  • Mq: 380
  • Locali: 15
  • Camere: 4
  • Bagni: 4
  • Box: 1
  • Posti auto: 1
  • Mq Giardino: 500
  • Classe: F (127,85 [kWh/m²a])
249.000 €

Contattaci

039 9466529
QRCODE
Qr Code

Le nostre proposte

  • Vendite
  • Affitti
  • Attività
  • Immobili commerciali
  • Aste
  • Cantieri

Contatti

  • Indirizzo : Via Garibaldi, 2
    20847 - Albiate (MB)
  • Telefono : 039 9466529
  • Telefono : 347 4666741
  • Fax : 0362 609959
  • Email : info@trovacasabrianza.it

Ultime Acquisizioni

  • Villa - Mergozzo - 249.000 €
  • Villetta schiera - Aicurzio - 239.000 €
  • Ufficio - Triuggio - 800 € / mese

Trova Casa Brianza - P. IVA 07681190968 - Privacy Policy - Cookie Policy - Revoca consensi - Powered by Miogest.com